360家庭防火墙5pro评测体验(接口)
-
摘要来自:
-
摘要来自:
十八线老编 -
摘要来自:2019-12-10
【什么值得买 摘要频道】下列精选内容摘自于《十八聊智能 篇二十五:利用子母路由打造小户型的网络盲点,等电梯也能高速上网》的片段:


子母路由中心棱线上均有一个指示灯,可以显示路由当前状态,便于用户快速查看(说明书上有详细的指示灯状态说明)。

路由器的所有接口布局在机身背面(指示灯对应的棱面上),母路由从上往下分别是三个自适应WAN/LAN网口,盲插功能的加入极大的降低了用户的使用成本,再往下则是DC电源接口和一个复位键。

子路由的接口布局与母路由相同,只是三个自适应WAN/LAN网口变为一个LAN口。

路由底部是三个硅胶垫和一圈散热孔,中心位置的贴纸标注了一些产品信息。

顶部中心位置有一个“360”Logo按键,官方称之为“Colink键”,作用是增加子路由,方式有两种,一种是在APP端按照指示操作,另一种则是子母路由通电后分别按一下“Colink键”即可自动组网。
其实路由顶部灰色的盖子是卡在白色外壳上的,这样就形成了一圈小缝隙,有作为顶部,所以日常使用极易藏污纳垢,后期的卫生也算是一个小问题。
硬件:高通四核处理器

(子路由拆解图)
360全屋路由搭载的是高通四核处理器,具体型号是高通IPQ4018,主频717MHz,同时搭载了256MB DDR3内存和32MB的闪存。四核的加入,按照官方的说法是每套子母路由可同时连接250台设备;在组网上使用的是高通Mesh技术,支持无线和有线多通道混合组网和菊花链星型拓扑组网。

在天线上,子母路由的2.4GHz与5GHz均配备2颗独立信号放大器,同时对发射和接收信号进行优化处理,官方实测数据为90-120㎡全屋满速上网。

360全屋路由是一款真全千兆路由,不管是有线还是无线均是千兆,这对于现在动辄百兆光纤入户地区来说尤其重要。在人性化上360全屋路由支持“?键换机功能”,只需要将360全屋路由通过网线连接到家里的旧路由上就能实现自动同步宽带账号和密码,还能保留原有的WiFi名称和密码等信息,做到真正意义上的换机无忧。

作为子母路由的专属武器,360全屋路由利用自身的算法,可以做到WiFi信号无感切换,在屋子里转着圈的玩手游也不用担心因为WiFi信号切换而导致延迟增加或者掉线问题;在前瞻性上,360全屋路由还支持IPv6(后续固件升级)。
体验:网页+360家庭防火墙App
很多人对子母路由有一种担心,害怕自己不会配网,而这个问题在360全屋路由上几乎不存在,拿到360全屋路由之后,先对母路由进行常规配网,随后在母路由附近将子路由通电,一会子路由就会自动和母路由配网成功,一切都在自动完成。

而网页端的设置和其它360路由相似,依旧走的是简洁路线,最大程度降低用户的学习成本,不一样的是在主页的右上角有一个“Colink 一键组网”按键,点击之后可以自动搜索附近可以实现组网的360路由。

尽管简单上手,但这并不代表360全屋路由的可玩性低,在360全屋路由的拓展功能里依旧内置了多种高阶玩法,安全、WIFi、网络、插件四个方面均有覆盖,充分做到了简单上手,深度可玩。

下面重点来说下APP端的360家庭防火墙。其实在前两款360路由产品当中也重点说过了,今天还是再讲一遍。360家庭防火墙区别于传统的路由安全,用人话说就是从单一网络环境升级到了网络环境、上网弱势群体和IoT设备三重保护。

在网络防护方面,360有自身强大的优势,在路由器产品体现在9层防火墙,能把网络上绝大部分攻击、病毒和不良信息拒之门外,还家庭一个干净的网络环境。同时每一天的上网详情360安全引擎会整理成一份完整的报告,通过公号发送到“主人”手机上,前一天谁上网做了什么一目了然。

在面对众多联网手机、平板和电脑时,360家庭防火墙能够对每一台设备进行身份配备,并针对每一种身份内置了一种上网保护机制,例如可以将小孩子的手机设置为“学生模式”,那么我们可以对其上网时段、玩游戏的总时长、看视频的时长、甚至是在有支付行为发生时主人直接会收到提醒。小孩打开学习应用时也可以通知主人手机,其中老编认为最好的则是“欢迎回家模式”,可以为家人设置回家提醒,孩子未按时回家则会有有警告提醒。

除了小孩是上网弱势群体外,其实老人也是,所以360家庭防火墙也推出了“老人模式”,晚上老人玩手机会提醒,而老人家最容易忽略的便是网上支付和一些钓鱼网站,这两项均可以进行保护。

除了“学生模式”和“老人模式”外还有“儿童模式”、“家人模式”,即使不喜欢其中任何一种模式,还可以根据自身的需求自定义相应的功能。

国内IoT正在兴起,但是大家最容易忽略的往往是IoT的网络安全,自己活生生的日子被人“直播”也不是没发生过。针对这一问题,360家庭防火墙能够监测家里所有联网智能设备的网络情况,防止设备被强行破解,同时能够在家里带宽被大量占用的时候依旧让IoT 指令优先转发,这样就不会影响IoT之间的联动,做到指令瞬间到达,即时响应。

最后回到360全屋路由的设置项,第一个功能依旧是“Colink 一键组网”,而第二个则是“拓扑图”,通过拓扑图就能清晰的看到每一台联网设备所连接的是哪台路由(子路由或者母路由)。

除此以外,360全屋路由还增加了一项“摄像头监测”功能,能够找出附近的所欲摄像头设备,防止别人偷窥。
测试:解决等电梯上网问题
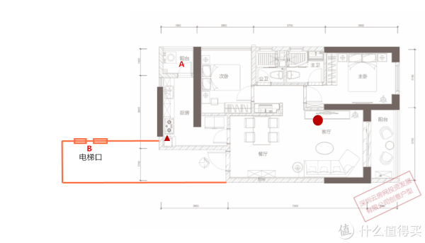
如果前期有看过老编路由(360路由5 Pro、V5S、华硕RT-AX89X、华为路由A2)评测内容的话应该知道,老编目前居住的房子也就80来平,除了生活阳台是WiFi信号重灾区外其他地方信号都还OK。但是老编没说的是,我家住在27楼,所以每天上下楼等电梯是一件痛苦的事,而最痛苦的还是等电梯的时候家里WiFi信号没发稳定的传输到电梯口,所以今天的主要测试项就是生活阳台和电梯口信号。

测试环境:依旧是我的80平小家,但是测试点则是小生活阳台(A点)和经过一段走廊的电梯口(B点)。电梯口距离入户门约6米左右,但是中间隔有多层墙,从而导致客厅路由信号没法很好的传输到这里。

(截图为止分别是友商路由A点/B点,360全屋路由A点/B点)

(截图为止分别是友商路由B点/A点,360全屋路由B点/A点)
首先将母路由器放在红心位置,不接子路由,作为对比还找了一款友商的路由参与对比测试(价格在400元左右,以免被说是黑文就不写品牌了),分别测试A点和B点的信号和下载速度。


从以上测试数据来看,不管是360母路由还是友商的路由均不能在A点和B点提供良好的信号支持,在电梯口(B点)只能说是勉强能够维持网络连接,并且在只有母路由连接时整个信号是要弱于友商的。

(截图顺序为2.4G信号A点/B点,5G信号A点、B点)

(截图顺序为2.4G信号B点/A点,5G信号B点/A点)
随后将360全屋路由的子路由放在了图中的红色三角形位置,首先但从路由自身来说三角形位置不是一个好的选择,因为是一个身处多处墙壁的角落,同时周边存在大量电器(还有微波炉),但是从实际环境来看这个位置就恰好能照顾到生活阳台和电梯口。


子母路由配对后再次测试相关WiFi信号和对应位置的下载速度,从数据反馈来看立马有了质的提升,电梯口(B点)尽管速度还是有很大程度的衰减,但是正常的上网还是满足的,而在生活阳台(A点)几乎下载速度几乎达到了峰值。
子母路由大家最担心的就是信号切换会不会造成延迟甚至掉线,老编就以手游为例做了测试,在客厅登录游戏进入,随后开门走到电梯口,尽管从路由的拓扑图当中能够明显看到信号已经切换,但是游戏过程中几乎感受不到任何变化。

官方不是说每套子母路由可同时连接250台设备么,所以拿到手老编就把家里的主路由换成了360全屋路由,加起来家里总共有30多个设备,长期在线的也有20多种,但是这几天时间体验下来并没有发下有设备离线的情况,并且也没有发现有智能家居部分联动失效的情况。
总结:大户型WiFi盲点杀手

不得不说,生活水平的不断提升让我们对美的追求越发严重,内置天线式的路由器在颜值上显然更符合大家的审美,这一点终于在360路由产品当中看到了。其实随着这些年的市场教育,大家再也不是那个看到多天线就一味认为信号强的“愚昧人”了。

从老编的实际测试来看,尽管只有80平的房间,但是加上电梯口、生活阳台等特殊环境的测试无疑相当于一个超大户型复杂环境,但是360全屋路由并没有让我们失望。


