霍尼韦尔 FC400B 新风系统购买理由(价格|滤网)
-
摘要来自:
-
摘要来自:
不留联系方式 -
摘要来自:2019-03-29
【什么值得买 摘要频道】下列精选内容摘自于《我的装修日志 篇一:霍尼韦尔新风系统之地送风方式加地暖》的片段:
研二时接触张大妈,便开启了剁手之路。不过其中接近一年的时间不怎么上了,因为早已看破你们的套路
不过今年开始准备装修,不得不又要开始走向新的更猛烈的剁手之路。也希望值友能多给出意见和评论,欢迎吐槽。

2015年,依次目睹了深圳大半年和上海小半年的疯涨,感觉其他城市的房价也不会按兵不动了,于是自己也按耐不住了。不过说道买房真是没有好(mei)好(you)考(qian)虑,与同事们在单位附近看了一次便果断入手。
户型小三室,建筑面积98.6㎡,加上送的4㎡飘窗一百出头,实际使用也就七十多吧
小区最西边银角,买房下单时考虑了好久西晒的问题,不过因为这户型金角(宣称)没有了, 只能选择银角。不过因为处于小区最外延,前面又是几排别墅区,视野不错。
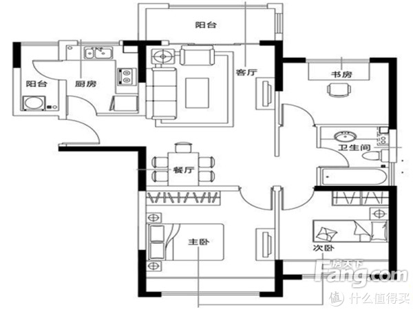
▼金角的户型图 ,银角镜像一下就好。

▼烟雨蒙蒙的户外(实在没有天气晴朗的皂片

引入正文。
看到上图雾霾这么严重,遂想在装修之前把新风系统加入计划。
新风系统在就霍尼韦尔和松下的两个品牌之内考虑。二者共同之处就是都有全热交换机,能在用夏天空调和冬天暖气时稍稍节省点能量(去看样品的时候其实就是一个塑料做的微孔结构,让冷热空气穿插流过,交换热量
)。不同之处在于,霍尼韦尔的是电子除尘净化箱,使用的是高压电给进来的空气加压,将颗粒物吸附到里边自带的金属网上;松下的是在全热交换机之中加入HEPA滤网,将颗粒物阻挡在滤网之上。
于是在张大妈和马云家看帖加咨询,考虑净化效果和后期的耗材,看中了霍尼韦尔带电子净化箱的新风系统。于是在淘宝找到一家负责给京津地区安装的咨询下来,客服要去电话后当晚电话过来,第二天设计经理就来家里看了看,初步说了下布局和费用(在马云家的价格上砍了砍价)。
"

